12/04/2017
26/02/2016
19/06/2013
POSTAL DO CHIADO: Largo Trindade Coelho
Largo Trindade Coelho. Largo pedonal? Não, é um parque de estacionamento de motos. Imagens enviadas por cidadãos identificados.
04/04/2013
Despejo ameaça duas livrarias emblemáticas do Chiado
In Público (4/4/2013)
Por João Pedro Pincha
«As livrarias Olisipo e Artes e Letras, no Chiado, correm o risco de fechar definitivamente em Agosto. Os proprietários culpam a nova Lei das Rendas e prometem lutar até ao fim para salvar os estabelecimentos
Os comerciantes de um prédio do Largo Trindade Coelho, na zona do Chiado, em Lisboa, receberam cartas a anunciar o fim dos seus contratos de arrendamento e, até ao fim de Agosto, os cinco espaços comerciais deverão encerrar portas. Entre eles estão as livrarias Olisipo e Artes e Letras.
“Sou homem para me acorrentar à porta” no dia em que tiver que sair da Olisipo, afirma José Vicente, o proprietário da livraria, que recebeu a carta referente à denúncia contratual em Janeiro. “Fixámos o valor da renda pela lei e quinze dias depois recebi uma carta do senhorio a dizer que ia fazer profundas obras de remodelação”, conta.
A Livraria Olisipo existe desde 1983 e dedica-se à venda de livros antigos e de gravuras. “Esta casa foi pensada e viabilizada para o turismo. Fidelizei os meus clientes. Agora, perco 30 anos de trabalho”, diz José Vicente, para quem a nova Lei das Rendas “é uma lei selvagem”. Tudo porque, no âmbito da actual lei, aprovada em Agosto do ano passado, os inquilinos apenas têm direito a 12 meses de renda como indemnização em caso de obras no edifício. Na anterior lei, de 2006, o valor da indemnização não podia ser inferior a 24 meses.
José Vicente recebeu uma proposta de indemnização de cerca de 4000 euros, o que, diz, não dará para pagar as indemnizações de despedimento às três pessoas que trabalham na Olisipo.
Também a Livraria Artes e Letras (igualmente dedicada à venda de livros antigos), situada no mesmo edifício, terá de fechar portas até Agosto. O proprietário, Luís Gomes, está actualmente em negociações para se mudar para outro espaço, mas não deixa de dizer que a lei “foi feita com os pés”. “Percebo que o senhorio faça aquilo que a lei permite. Vai ser bastante prejudicial para o comércio na cidade”, afirma.
Além de ter de sair do espaço onde está há 25 anos, Luís Gomes está igualmente preocupado com os clientes por correspondência que foi angariando. “Uma livraria demora anos a fazer, a criar clientela, a conquistar confi ança. A nova lei não tem em conta os estragos feitos ao nome e à reputação de uma casa.”
No mesmo prédio, além das duas livrarias, funcionam ainda dois restaurantes, no rés-do-chão, e uma pensão, no último andar. Também estes estabelecimentos receberam a notificação de cessação do contrato em Janeiro. “A lei é cega”, afi rma Augusto Silva, do Restaurante Expresso, que assume: “Comigo vai dar guerra até à última”. Aqui, serão dois os funcionários — além de Augusto — a perderem os seus empregos.
Mais abaixo, dez funcionários irão para o desemprego com o fecho da Adega de S. Roque, cuja entrada fica na Rua da Misericórdia, onde foi proposta aos actuais proprietários — que exploram o espaço desde 1993 — uma indemnização “à volta de 10 mil euros”.
Jorge Carrera, dono da Pensão Estrela d’Ouro juntamente com a mulher, paga 280 euros de renda mensal, pelo que terá uma indemnização na casa dos 3300 euros quando fechar, a 1 de Setembro. O senhorio, garante, “nunca fez aqui um tostão de despesa”.
O proprietário do edifício preferiu não fazer declarações ao PÚBLICO, garantindo apenas que o processo está a decorrer dentro da legalidade e que as obras se destinam à criação de habitação, mantendo-se o piso térreo para espaços comerciais.
José Vicente, que até já falou pessoalmente com a ministra Assunção Cristas sobre o seu caso — “não vi abertura da parte dela” para mudanças à lei, diz —, enviou uma carta aos deputados da Assembleia da República, o que garante ser “o início da luta”.
Todos os comerciantes estão a estudar cenários com advogados.
Uma lei pouco consensual
Senhorios e inquilinos em pólos opostos
A Presidente da União das Associações de Comércio e Serviços (UACS), Carla Salsinha, pensa que “o que devia ter sido feito” na Lei das Rendas era “fazer sentar as partes para tentar chegar a uma solução equilibrada e justa para todos”, o que, afirma, não aconteceu e tem provocado casos de pânico dos inquilinos face à lei. Carla Salsinha diz que têm sido muitos os associados a contactarem a UACS “com este drama, a pedir ajuda” e que “deslocalizar uma empresa significa muitas vezes encerrá-la”, prevendo mais encerramentos no futuro. Na semana passada, o presidente da Câmara de Lisboa, António Costa, também se mostrou preocupado com a lei, que diz estar a ser “desastrosa” e avisa que “a missa ainda nem saiu do adro”. Já Francisco Silva Carvalho, advogado do senhorio do edifício do Largo Trindade Coelho, diz que “os proprietários andaram décadas a ser mecenas dos comerciantes”, devido às baixas rendas que pagavam. A ministra afirmou, em Fevereiro, ser “prematuro mexer na lei”.»
26/03/2013
Por causa de hotel de charme, Livraria Olisipo com ordem de despejo!
30/01/2013
24/08/2011
NÃO SE PERCEBE NADA
o cartaz da foto em anexo anuncia 2 meses de obras, sem dizer quais, a iniciar em Junho.
Que eu visse, o cartaz apareceu em Agosto e próximo da data em que as obras - que são de repavimentação - começaram (quase coincidindo com o termo anunciado).
mas se o troço referido é entre o Rato e a Trindade, a verdade é que só foi feito meio trabalho, do rato ao principe real, e em cerca de uma semana. Depois a maquinaria desapareceu toda.
Do Principe Real ao Lg trindade coelho permanece um pavimento miserável qual cidade de terceiro mundo, com buracos, lombas e remendos mal amanhados.
NÃO TENHO RAZÃO EM DIZER QUE NÃO SE PERCEBE NADA?
Cumprimentos
nc
22/06/2009
20/01/2009
«LISBOA, CAPITAL do CHARME» - 8: Hemeroteca Municipal
28/10/2008
21/10/2008
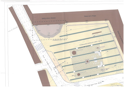
LARGO TRINDADE COELHO: sem misericórdia
Vem aí a requalificação do Lg.Trindade Coelho:
À primeira vista, a ideia é boa e só peca por defeito. Ou seja:
Mais uma vez se trata de um projecto casuístico. Dada a história e dado o carisma da zona a CML devia tratar de desenvolver não um mini-arranjo do Largo Trindade Coelho, quiçá, fazendo o 'frete' à Santa Casa, mas criar um gabinete à semelhança do do Rossio, de há uns anos, e desenvolver um projecto integrado que englobasse os largos, igualmente importantíssimos, da Trindade (toda a gente pensa que aquilo que ali está é uma travessa entre a Rua da Misericórdia e a Nova da Trindade, mas trata-se de um largo (!) - e Bordalo Pinheiro, fazendo pois uma integração completa desde o Lg. Trindade Coelho até ao Largo do Carmo. E um projecto que envolvesse:
a) Reordenamento do trânsito (condicionando-o pura e simplesmente desde o Lg. Trindade Coelho até ao Lg. Trindade, deste ao Lg. Bordalo Pinheiro e deste ao do Carmo, deixando livres apenas dois percursos: Rua Serpa Pinto-L.Bordalo-Lg. Carmo e Cç.Sacramento-Rua da Trindade-R. Nova Trindade ... por causa do parque estacionamento da Império);
b) 'Pedonalização' integral dos Largos Bordalo Pinheiro, Trindade Coelho e Trindade, deixando os carris para a reactivação do eléctrico 24, em todos os seus ramais;
c) Arborização maciça de todo esse percurso, permitindo assim a criação de um mini-corredor verde entre o Largo do Carmo e o Largo Trindade Coelho, e deste ao Jardim-Miradouro de São Pedro de Alcântara;
d) Reabilitação do mobiliário urbano, não permitindo mistura de estilos nem materiais, ou seja, manter 100% os candeeiros clássicos, os quiosques, os bancos de jardim, etc.;
e) Calcetamento dos largos acima descritos com calçada portuguesa em disposição alusiva à tradição de desenhos lisboetas, compatíveis com a traça arquitectónica de toda essa zona.
Contudo, apenas uma parte destas linhas mestras está presente na proposta que o executivo leva a reunião de CML, senão veja-se:
Prevê-se o alargamento da placa central do Lg. Trindade Coelho, proporcionando amplitude ao largo, bem como a restrição do trânsito automóvel e ao estacionamento, a recuperação e recolocação dos quiosques e o embelezamento geral da praça, e tudo isso é bem-vindo. Mas:


1. Os limites da intervenção parecem-me exíguos, pois ao longo da Rua da Misericórdia, terminam mesmo antes do Largo da Trindade, e a única preocupação de facto é criar uns quantos lugares de estacionamento ao longo dos passeios. Erro crasso.


2. Contudo, o ponto mais polémico do projecto refere-se à remoção do gradeamento (misto de ferro fundido e forjado, com motivos neo-góticos e 2 bons candeeiros incorporados no mesmo) da Igreja de São Roque, c/o argumento de se 'repor a imagem de 1808'. Acontece que a balustrada é de 1868, parece-me interessante e parte integrante da memória colectiva e, embora não sendo tão bonito nem valioso como o da Igreja de São Domingos, por exemplo, não deixa de ser património da cidade e imagem daquele largo desde há muitos anos. E o facto de no texto da proposta se mencionar que a balaustrada vai para os 'armazéns da CML para futura colocação', não augura nada de bom, e temo pelo seu futuro...
3. O projecto, embora mencionando a manutenção dos carris de eléctrico, confunde tudo e esquece-se da extensão ao Largo do Carmo, linha essencial para a reabertura do E-24.
4. Fala-se num projecto de iluminação pública mas não se sabe qual. Atenção, pois estão em causa candeeiros antigos, iguais ao do Largo Camões, que importa preservar a todo o custo. Quer sobre a balaustrada, quer no largo. Dado o passado recente de autêntico 'assassínio dos candeeiros históricos da cidade' por parte da CML, todo o cuidado é pouco e existe perigo iminente.
5. Finalmente, está prevista a colocação de uma estátua do Pe.Antº Vieira algures no largo. Não se diz onde, nem se sabe quais as dimensões do monumento. Tenho a opinião que já chega de 'bonecos' espalhados pela cidade: de calceteiros a bolas de pedra, há de tudo um pouco pela cidade. Ora, como é sabido, escultores como Machado de Castro ou Leopoldo de Almeida, é coisa que não existe nesta terra. Pelo que coisinhas bonitas como o 'falo do Eduardo VII' ou 'Pessoa enfiado num livro' são maluqueiras que nada trazem de bom a Lisboa. Até porque haverá muito melhores formas de perpetuar a memória e o legado do Pe. Antº Vieira do que colocar um mono naquele largo.
Extractos da memória descritiva:
Fotos: Aqui e Arquivo Municipal
19/10/2008
CEPOS DA CAPITAL: Largo Trindade Coelho
Pois neste cepo, junto da Igreja de São Roque, já foi visto, várias vezes, uma bica pousada. O robusto e direito cepo serve habitualmente de "mesa de café" de apoio aos clientes do Quiosque S. Roque.




