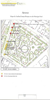
A P4Amanhã estas três árvores vão ser abatidas porque apresentam 'perigosidade alta'. Elas vivem aqui há mais de 20 anos, tem aguentado os maus tratos a que as sujeitaram quem delas devia cuidar, tem aguentado firmes todos os vendavais e intempéries durante este tempo todo, mas alguém resolveu, olhando para elas, que apresentam 'perigosidade alta' pelo que devem ser imediatamente abatidas.
Que sorte temos de ainda não nos considerarem de 'perigosidade alta'.
Que sorte temos de ainda não nos considerarem de 'perigosidade alta'.



6 comentários:
É pena de facto.
Assassinos!
a mim agrada-me é que quem de mim e da cidade deve cuidar se preocupe em resolver os problemas da cidade.
É absurdo, como sugere o autor do post, perante um problema identificado, pedir que se fique de braços cruzados. mais do que absurdo, parece-me irresponsável e de enorme demagogia.
Este caso, ou não-caso na minha opinião, demonstra bem a cidadania negativa e demagógica que por aí se pratica.
Em termos práticos, além de opinar sobre saibros e candeeiros, o que é que os srs. fizeram por este ou por outros jardins? o que é que fizeram por estas ou outras ruas? o que é que fizeram por este bairro ou por esta cidade?
Deixem a obra acabar e depressa porque o que os moradores precisam é do jardim de volta! Depressa e melhor do que estava!
Falar é fácil, fazer dá mais trabalho.
Ai meu amigo
Esta gente endoideceu e nós precisamos pedir indemnizações por danos psicológicos causados!
Tenho tomado conhecimento do abate de árvores, que não fazem sentido, isto ultrapassa o limite da racionalidade!
Beijos no teu coração
Então não queria o parecer do Laboratório de Patologia? É este mesmo, não é? Então agora que já o têm, não gostam?
Já começo a não perceber nada destes tipos.
Afinal o que é que querem? É que eu no início aderi, mas agora começo a achar que são pouco honestos. Se calhar a camara é que tem razão...Já não digo nada, mas fiquei na reserva com esta...
Provavelmente as ditas árvores até podem estar doentes e em risco de cair, no entanto, como passo frequentemente pelo local estas não aparentam sintomas de doença, será que com as obras em curso a localização das ditas árvores estão a dificultar as obras ou algo que pretendam ali construír? Isto também é considerada doença.
Luís Fr
Enviar um comentário